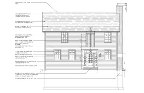
Barn to Carriage House Conversion

Front Elevation
Barn to Carriage House Conversion - Project Manager while at Sionas Architecture, PC
Site Plan - Carriage house is located to the right.
Barn to Carriage House Conversion - Project Manager while at Sionas Architecture, PC

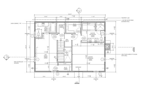
First Floor Plan - Living Spaces
Barn to Carriage House Conversion - Project Manager while at Sionas Architecture, PC
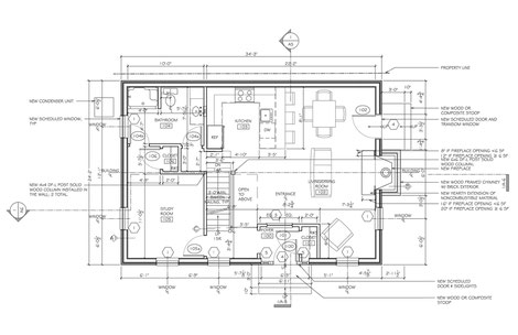
Second Floor Plan - Bedrooms
Barn to Carriage House Conversion - Project Manager while at Sionas Architecture, PC

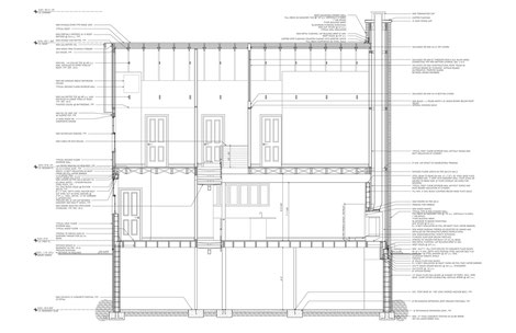
 Section showing stair and reclaimed ornamental truss.
Barn to Carriage House Conversion - Project Manager while at Sionas Architecture, PC
Section showing exposed structural elements.
Barn to Carriage House Conversion - Project Manager while at Sionas Architecture, PC

CONTACT US

 

studio@csgude.com 

718.414.2367

 

158 Slosson Avenue

Staten Island, NY, 10314